Community Center
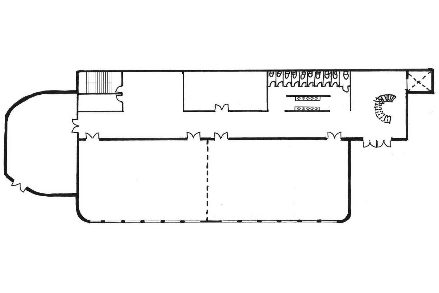
In a collaborative architecture group in the 2024 ACE Mentor Program, I co-created the design for our community center. My areas of focus were the north wing which had three floors, one of which was the lobby, shown here. I sketched this floor plan and a perspective view, which I brought into Photoshop to add materials to further develop the rendering.



